Расширенный поиск проектов
Проекты домов
по категориям
Проекты домов
по материалам
Проекты
строений
Сравнение товаров: 0 товаров
Ваша корзина пуста

Добавить в избранное Удалить из избранного Проектов в избранном: 0

Проект СПА комплекса БЭ 262-16, 262,16 кв.м

Рассчитать смету

45 000 руб.


Проект бассейна БЭ 262-16


Кликните для 

увеличения
Кликните для 

увеличения
Кликните для 

увеличения

Описание:
Хотя разработчики проекта позиционируют его как проект загородного бассейна, но правильнее было бы охарактеризовать его как отдельно стоящий СПА-комплекс с полным набором помещения для оздоровительных и восстановительных процедур в полном объеме.
Котельная: да.
Бассейн: да.
Комната отдыха: да.
Банный комплекс: да.
Жилая комната: да.
Кухня: да.
Санузлы: да.

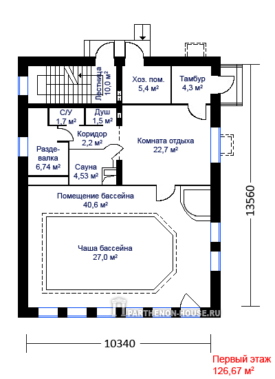
Чаша бассейна: скимерная.
Размеры чаши бассейна: 4,0 х 7,0 х 1,2 м.
-2 м(Н воды)

Площадь общая: 262,16 кв.м.
Площадь жилая: 26,70 кв.м.
Высота подвала: 2,05 м.

Крыша:
Площадь крыши: 148,8 кв.м.
Угол наклона крыши: 30.

Технология и конструкция: кирпич.
Наружные стены: утепленная 3-х слойная кладка толщиной 550 мм. (внутренняя верста толщиной 380 мм. из 7-ми щелевого керамического кирпича, 50 мм. утеплитель из базальтовых плит, внешняя верста 120 мм. из полнотелого кирпича под штукатурку).
Перекрытие: над подвалом - монолитный железобетон с монолитными участками по металлическим балкам. Перекрытие над первым этажом - сборные железобетонные плиты.
Конструкция крыши: деревянная, стропильная.

Фундамент: монолитный железобетон с гидроизоляцией, утеплением.

Отделка.
Кровля: металлочерепица.
Фасад: штукатурка.
Цоколь: искусственный или натуральный камень.

Инженерные решения:
Отопление: от газового котла, расположенного в котельной жилого дома, газ - магистральный.
Водоснабжение: из центральной сети.
Вентиляция: помещения бассейна воздушная и совмещена с принудительной системой вентиляции этого помещения. Остальные помещения здания бассейна имеют вентиляцию с естественным побуждением через вент.каналы.
Канализация бытовая: в центральную сеть.
Канализация ливневая и слив из чаши бассейна: в лотки ливневой канализации.
Электроснабжение: от внешних энергосетей.

Габаритные размеры СПА-комплекса: 10,35 х 13,56 м.
Минимальные размеры участка: 17,0 x 19,0 м.
Зеркальная проекция: нет.
Проект в другой технологии строительства: нет.
ПРИМЕЧАНИЕ:
- Состав: АР + КР = 45000 руб.
- Рабочий комплект: (АР + КР + ИС) = 75000 руб.


Предложение Товар/Услуга
СТРОИТЕЛЬСТВО Калькулятор стоимости материалов ➤
БЕСПЛАТНО Экспресс-доставка проектов во все регионы России бесплатно!
ЦЕНЫ Мы не посредники и не перепродаем проекты по завышенным ценам. Обратившись к нам вы сможете напрямую заключить договор на приобретение готового проекта дома или индивидуальное проектирование непосредственно с архитекторами авторами проектной документации и по ценам, которые они предлагают.
ПОДАРКИ При покупке любого проекта серий ДС и ДСГ мы дарим вам проект бани ДС 34-6.

Стоимость проекта АР+КР: 45 000 руб.
Стоимость проекта АР+КР+ИС: 75 000 руб.
Архитектурный паспорт проекта: 4 000 руб.
Заказать дополнительную копию проекта:
НЕ заказывать копию проекта:  
1 копия проекта: 4 000 руб.
2 копии проекта: 8 000 руб.
Выбрать проекцию дома:
Проект: прямая проекция  

По вопросам консультации или приобретения проектной документации по этому проекту просьба звонить по телефону:
+7 926-377-46-81

 
Как правильно оформить заказ проекта дома на parthenon-house.ru?

Проект дома
Сроки Экспресс-Доставки Вашего заказа "от двери до двери" по России
Москва, Санкт-Петербург, Орел, Белгород, Рязань, Курск, Нижний Новгород, Казань, Ярославль, Калуга, Иваново 1 день
Калининград, Архангельск, Краснодар, Ростов-на-Дону, Астрахань, Волгоград, Самара, Саратов, Екатеринбург, Новосибирск, Омск, Томск, Сургут, Тюмень, Новый Уренгой, Ханты-Мансийск, Барнаул, Челябинск, Пермь, Красноярск, Ижевск, Уфа 2 дня
Хабаровск, Владивосток, Иркутск, Якутск, Улан-Удэ 3 дня
Салехард, Нерюнгри, Южно-Сахалинск, Абакан, Чита 4 дня
Доставка в страны СНГ 3 - 5
дней

Назад в раздел